Skip to content

Học tập lớp 12

  • Trắc nghiệm Holland
  • Tính điểm xét tuyển
  • Danh sách trường Đại học
  • Kết quả bài thi

Học tập lớp 12

  • Home » 
  • Toán lớp 11

Giải Chuyên đề Toán 11 Kết nối tri thức Bài tập cuối chuyên đề 3

By Admin Lop12.com 23/02/2026 0

Giải Chuyên đề Toán 11 Bài tập cuối chuyên đề 3

Bài 3.17 trang 80 Chuyên đề Toán 11: Cho hình hộp chữ nhật ABCD.A’B’C’D’. Trong các mệnh đề sau, mệnh đề nào đúng?

a) Nếu mặt phẳng chiếu đứng song song với mặt phẳng (ABB’A’) thì các hình chiếu đứng của A và D trùng nhau.

b) Nếu mặt phẳng chiếu bằng song song với mặt phẳng (ABCD) thì các hình chiếu bằng của C và C’ trùng nhau.

c) Nếu mặt phẳng chiếu cạnh song song với mặt phẳng (BCC’B’) thì các hình chiếu cạnh của A và C trùng nhau.

Lời giải:

Trong các mệnh đề trên, mệnh đề đúng là: a, b.

Bài 3.18 trang 80 Chuyên đề Toán 11: Bản vẽ trong Hình 3.50 có đáp ứng các nguyên tắc cơ bản của vẽ kĩ thuật hay không? Giải thích vì sao.

Bài 3.18 trang 80 Chuyên đề Toán 11

Lời giải:

Bản vẽ trong Hình 3.50 thể hiện duy nhất một vật thể cần được biểu diễn, tuy nhiên kích thước của vật thể không được xác định đầy đủ từ bản vẽ nên bản vẽ không đáp ứng được nguyên tắc đầy đủ của vẽ kĩ thuật. Kích thước bị thiếu là:

Bài 3.18 trang 80 Chuyên đề Toán 11

Bài 3.19 trang 80 Chuyên đề Toán 11: Trong không gian cho điểm A và ba mặt phẳng đôi một vuông góc (P1), (P2) và (P3) giao nhau tại O. Gọi A1, A­2, A3 lần lượt là hình chiếu vuông góc của A trên các mặt phẳng (P1), (P2) và (P3). Gọi M, N, P lần lượt là chân đường vuông góc hạ từ A xuống các giao tuyến của (P1) và (P2), (P2) và (P3), (P3) và (P1).

a) Chứng minh OA2 = OM2 + ON2 + OP2.

b) Áp dụng ý a để chứng minh OA=OA12+OA22+OA322 .

Sử dụng kết quả trên để tính độ dài của một đoạn thẳng mà ba hình chiếu có độ dài lần lượt là 1 cm, 2 cm và 3 cm.

Lời giải:

Bài 3.19 trang 80 Chuyên đề Toán 11

a) Áp dụng định lí Pythagore cho các tam giác vuông.

Tam giác OMA vuông tại M có: OA2 = OM2 + AM2 (1)

Tam giác ONA vuông tại N có: OA2 = ON2 + AN2 (2)

Tam giác OPA vuông tại P có: OA2 = OP2 + AP2 (3)

Cộng vế theo vế của (1), (2), (3) ta được: 

3OA2 = (OM2 + ON2 + OP2) + (AM2 + AN2 + AP2) 

Ta chứng minh được: AM2 + AN2 + AP2 = 2OA2. (4)

Suy ra: OA2 = OM2 + ON2 + OP2. 

b) Vì AM vuông góc OM, OM // AA3 nên AM vuông góc AA3

Mà AA3 vuông góc với OA3 

Suy ra: AM // OA3 và AA3 // OM nên AMOA3 là hình bình hành.

Do đó: AM = OA3.

Chứng minh tương tự ta được: AN = OA1, AP = OA2.

Thay kết quả trên vào (4) ta được: OA32+OA22+OA12=2OA2 .

Suy ra OA=OA12+OA22+OA322 .

Ba hình chiếu có độ dài lần lượt là 1 cm, 2 cm và 3 cm.

Thay số vào kết quả trên ta được: OA=12+22+322=7  (cm).

Bài 3.20 trang 80 Chuyên đề Toán 11: Bạn Long nói rằng khi vẽ hình chiếu trục đo thì các hệ số biến dạng luôn nhỏ hơn hoặc bằng 1. Bạn Long nói đúng hay sai? Vì sao?

Lời giải:

Bạn Long không đúng. Vì hệ số biến dạng p, q, r là tỷ số giữa kích thước trên hình vẽ và kích thước thực của vật thể theo các trục x, y, z nên nếu trong trường hợp kích thước hình vẽ lớn hơn kích thước thực của vật thể thì hệ số biến dạng sẽ lớn hơn 1. 

Bài 3.21 trang 80 Chuyên đề Toán 11: Hình 3.51 thể hiện hình chiếu đứng và hình chiếu bằng của một đoạn thẳng AB trong không gian.

a) Xác định hình chiếu cạnh A3B3 của đoạn thẳng đó.

b) Biết A1B1 = 10 cm và A2B2 = 6 cm, tính độ dài của A3B3.  

Bài 3.21 trang 80 Chuyên đề Toán 11

Lời giải:

a) Hình chiếu cạnh của đoạn thẳng AB có hai đầu mút là hình chiếu cạnh A3 của A và B3 của B.

Để xác định A3 ta làm như sau: Qua điểm A2 vẽ đường thẳng vuông góc với Oz tại C và trên tia đối của tia Ox lấy điểm D sao cho OC = OD. Đường thẳng qua A1 và vuông góc với Oz cắt đường thẳng qua D và vuông góc với Ox tại A3. Tương tự xác định B3. Nối A3 và B3 ta nhận được hình chiếu cạnh của đoạn thẳng AB.

Bài 3.21 trang 80 Chuyên đề Toán 11

b) Gọi E là giao điểm của A1A3 và B1B2.

Dễ dàng chứng minh tứ giác A1A2B2E là hình chữ nhật.

Do đó: A1E = A2B2.

Mà A2B2 = 6 cm nên A1E = 6 cm.

Tam giác A1B1E vuông tại E nên A1E2 + B1E2 = A1B12 (định lí Pythagore)

Suy ra B1E=A1B12−A1E2=102−62=8  (cm).

Mà B1E = A3B3 (A3B3B1E là hình chữ nhật)

Vậy A3B3 = 8 cm.

Bài 3.22 trang 81 Chuyên đề Toán 11: Sử dụng thước đo góc nếu cần thiết, hãy cho biết hình nào trong Hình 3.52 là hình chiếu trục đo vuông góc đều.

Bài 3.22 trang 81 Chuyên đề Toán 11

Lời giải:

Hình 3.52 thứ hai tính từ trái có các góc trục đo khác 120° nên không là hình chiếu trục đo vuông góc đều. Hình 3.52 thứ nhất và 3.52 thứ ba là hình chiếu trục đo vuông góc đều. 

Bài 3.23 trang 81 Chuyên đề Toán 11: Bản vẽ ở Hình 3.53 mô tả vật thể nào trong thực tế? Cho biết hình nào là hình chiếu vuông góc, hình nào là hình chiếu trục đo của vật thể đó.

Bài 3.23 trang 81 Chuyên đề Toán 11

Lời giải:

Bản vẽ ở Hình 3.53 mô tả một chiếc xe buýt. Hình a, b, c là hình chiếu vuông góc; hình d là hình chiếu trục đo.

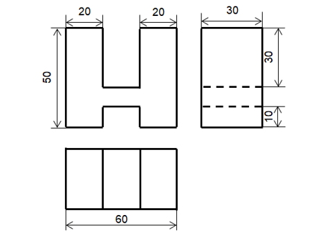
Bài 3.24 trang 81 Chuyên đề Toán 11: Một vật thể được biểu diễn trên giấy kẻ ô tam giác đều như trong Hình 3.54. Quy ước chiều dài mỗi cạnh của tam giác đều là 10 mm, hãy lập bản vẽ kĩ thuật của vật thể đó và tính thể tích của nó.

Bài 3.24 trang 81 Chuyên đề Toán 11

Lời giải:

Bước 1: Nhận thấy rằng vật thể có dạng khối chữ H được bao bởi một hình hộp chữ nhật, hai phần rãnh cũng là hình hộp chữ nhật.

Bài 3.24 trang 81 Chuyên đề Toán 11

Bước 2: Chọn các hướng chiếu lần lượt vuông góc với mặt trước, mặt trên và mặt bên trái của vật thể.

Bài 3.24 trang 81 Chuyên đề Toán 11

Bước 3: Lần lượt vẽ hình chiếu vuông góc của hình hộp chữ nhật bao bên ngoài vật thể, của khối chữ H và của rãnh hộp chữ nhật.

Bài 3.24 trang 81 Chuyên đề Toán 11

Bài 3.24 trang 81 Chuyên đề Toán 11

Bước 4: Xóa các nét thừa, chỉnh sửa các nét vẽ theo quy tắc: các đường thấy vẽ bằng nét liền; các đường khuất vẽ bằng nét đứt. Ghi các kích thước của vật thể trên các hình chiếu.

Bài 3.24 trang 81 Chuyên đề Toán 11

Bước 5: Vẽ hình chiếu trục đo vuông góc đều của vật thể.

Bài 3.24 trang 81 Chuyên đề Toán 11

Bài 3.24 trang 81 Chuyên đề Toán 11

Bước 6: Hoàn thành khung tên, khung bản vẽ để được bản vẽ cuối cùng có dạng như sau:

Bài 3.24 trang 81 Chuyên đề Toán 11

Ta có: Thể tích của giá chữ H bằng hiệu thể tích của hình hộp chữ nhật bao ngoài và thể tích của hai rãnh hộp chữ nhật.

Thể tích hình hộp chữ nhật bao ngoài là: 60 . 30 . 50 = 90 000 (mm3).

Thể tích rãnh hộp chữ nhật thứ nhất là: 30 . 20 . 30 = 18 000 (mm3).

Thể tích rãnh hộp chữ nhật thứ hai là: 20 . 30 . 10 = 6 000 (mm3).

Vậy thể tích của giá chữ H là: 90 000 – 18 000 – 6 000 = 66 000 (mm3).

Xem thêm các bài giải chuyên đề học tập Toán lớp 11 Kết nối tri thức hay, chi tiết khác:

Bài 10: Bài toán tìm đường tối ưu trong một vài trường hợp đơn giản

Bài tập cuối chuyên đề 2

Bài 11: Hình chiếu vuông góc và hình chiếu trục đo

Bài 12: Bản vẽ kĩ thuật

Bài tập cuối chuyên đề 3

Xem thêm các bài giải chuyên đề học tập Toán lớp 11 Kết nối tri thức hay, chi tiết khác:

Chuyên đề 1: Phép biến hình trong mặt phẳng

Chuyên đề 2: Làm quen với một vài khái niệm của lí thuyết đồ thị

Chuyên đề 3: Một số yếu tố vẽ kĩ thuật

Tags : Tags Giải Chuyên đề Toán 11
Share
facebookShare on Facebook

Bài liên quan

Giải SGK Toán 11 Bài 12 (Kết nối tri thức): Đường thẳng và mặt phẳng song song

Giải SGK Toán 11 Bài 23 (Kết nối tri thức): Đường thẳng vuông góc với mặt phẳng

Giải SGK Toán 11 (Kết nối tri thức): Bài tập ôn tập cuối năm

Sách bài tập Toán 11 Bài 13 (Kết nối tri thức): Hai mặt phẳng song song

Sách bài tập Toán 11 Bài 26 (Kết nối tri thức): Khoảng cách

Giải Chuyên đề Toán 11 Kết nối tri thức Bài 4: Phép quay và phép đối xứng tâm

20 câu Trắc nghiệm Hàm số lượng giác (Kết nối tri thức 2025) có đáp án – Toán lớp 11

20 Bài tập Giới hạn của hàm số (sách mới) có đáp án – Toán 11

0 Góp ý
Phản hồi nội tuyến
Xem tất cả bình luận

Mục lục

  1. Giải SGK Toán 11 Bài 1 (Kết nối tri thức): Giá trị lượng giác của góc lượng giác
  2. Giải SGK Toán 11 Bài 2 (Kết nối tri thức): Công thức lượng giác
  3. Giải SGK Toán 11 Bài 3 (Kết nối tri thức): Hàm số lượng giác
  4. Giải SGK Toán 11 Bài 4 (Kết nối tri thức): Phương trình lượng giác cơ bản
  5. Giải SGK Toán 11 (Kết nối tri thức) Bài tập cuối chương 1 trang 40
  6. Giải SGK Toán 11 Bài 5 (Kết nối tri thức): Dãy số
  7. Giải SGK Toán 11 Bài 6 (Kết nối tri thức): Cấp số cộng
  8. Giải SGK Toán 11 Bài 7 (Kết nối tri thức): Cấp số nhân
  9. Giải SGK Toán 11 (Kết nối tri thức) Bài tập cuối chương 2 trang 56
  10. Giải SGK Toán 11 Bài 8 (Kết nối tri thức): Mẫu số liệu ghép nhóm
  11. Giải SGK Toán 11 Bài 9 (Kết nối tri thức): Các số đặc trưng đo xu thế trung tâm
  12. Giải SGK Toán 11 (Kết nối tri thức) Bài tập cuối chương 3 trang 69
  13. Giải SGK Toán 11 Bài 10 (Kết nối tri thức): Đường thẳng và mặt phẳng trong không gian
  14. Giải SGK Toán 11 Bài 11 (Kết nối tri thức): Hai đường thẳng song song
  15. Giải SGK Toán 11 Bài 12 (Kết nối tri thức): Đường thẳng và mặt phẳng song song
  16. Giải SGK Toán 11 Bài 13 (Kết nối tri thức): Hai mặt phẳng song song
  17. Giải SGK Toán 11 Bài 14 (Kết nối tri thức): Phép chiếu song song
  18. Giải SGK Toán 11 (Kết nối tri thức): Bài tập cuối chương 4
  19. Giải SGK Toán 11 Bài 15 (Kết nối tri thức): Giới hạn của dãy số
  20. Giải SGK Toán 11 Bài 16 (Kết nối tri thức): Giới hạn của hàm số

Copyright © 2026 Học tập lớp 12 - Sách Toán - Học Tập AI
  • Sitemap
  • Chính sách
  • Giới thiệu
  • Hướng dẫn
  • Kết quả
  • Liên hệ
Back to Top
Menu
  • Sitemap
  • Chính sách
  • Giới thiệu
  • Hướng dẫn
  • Kết quả
  • Liên hệ
wpDiscuz