Skip to content

Học tập lớp 12

  • Trắc nghiệm Holland
  • Tính điểm xét tuyển
  • Danh sách trường Đại học
  • Kết quả bài thi

Học tập lớp 12

  • Home » 
  • Toán lớp 11

Giải Chuyên đề Toán 11 Kết nối tri thức Bài 12: Bản vẽ kĩ thuật

By Admin Lop12.com 23/02/2026 0

Giải Chuyên đề Toán 11 Bài 12: Bản vẽ kĩ thuật

Mở đầu trang 68 Chuyên đề Toán 11: Bản vẽ kĩ thuật của một vật thể là tài liệu mô tả chính xác hình dạng, kết cấu và kích thước của vật thể đó. Bản vẽ kĩ thuật cần tuân thủ các nguyên tắc nào? Làm thế nào để đọc được thông tin từ một bản vẽ kĩ thuật và lập một bản vẽ kĩ thuật đơn giản?

Mở đầu trang 68 Chuyên đề Toán 11

Lời giải:

– Bản vẽ kĩ thuật cần tuân thủ các nguyên tắc:

+ Nguyên tắc phản chuyển: các hình biểu diễn trên bản vẽ kĩ thuật xác định duy nhất hình dạng và cấu tạo của vật thể được biểu diễn.

+ Nguyên tắc đầy đủ: các kích thước của vật thể được biểu diễn đầy đủ trên bản vẽ kĩ thuật.

– Đọc thông tin từ bản vẽ kĩ thuật cần tuân theo trình tự sau:

+ Khung tên: xác định tên gọi của vật thể, vật liệu sử dụng để chế tạo vật thể, tỉ lệ bản vẽ.

+ Hình biểu diễn: xác định tên gọi của các hình chiếu có trong bản vẽ và các hình biểu diễn khác (nếu có).

+ Kích thước: xác định kích thước chung của vật thể và kích thước các thành phần.

+ Yêu cầu kĩ thuật: xác định yêu cầu về gia công, xử lí bề mặt của vật thể.

– Lập bản vẽ kĩ thuật của một vật thể ta thực hiện theo các bước sau:

+ Bước 1: Quan sát vật thể và phân tích vật thể thành các hình khối đơn giản.

+ Bước 2: Chọn các hướng chiếu phù hợp, thường là các hướng vuông góc với các mặt của vật thể.

+ Bước 3: Vẽ hình chiếu vuông góc của các hình khối cấu tạo nên vật thể.

+ Bước 4: Xóa các nét thừa, chỉnh sửa các nét vẽ theo đúng tiêu chuẩn và ghi kích thước trên các hình chiếu.

+ Bước 5: Từ ba hình chiếu vuông góc vừa vẽ, vẽ hình chiếu trục đo vuông góc đều của vật thể.

+ Bước 6: Kẻ khung bản vẽ, khung tên, ghi các nội dung vào khung tên để hoàn thành bản vẽ. 

1. Một số tiêu chuẩn của bản vẽ kĩ thuật

HĐ1 trang 69 Chuyên đề Toán 11: Quan sát bản vẽ kĩ thuật trong Hình 3.32 và trả lời các câu hỏi sau.

a) Bản vẽ kĩ thuật được vẽ trên khổ giấy nào?

b) Các cạnh của khung bản vẽ cách các cạnh của khổ giấy bao nhiêu milimét?

c) Khung tên được đặt ở vị trí nào của bản vẽ và trình bày những thông tin cơ bản nào?

HĐ1 trang 69 Chuyên đề Toán 11

Lời giải:

a) Bản vẽ kĩ thuật được vẽ trên khổ giấy A3 (420 mm × 297 mm).

b) Cạnh của khung bản vẽ cách cạnh trái của khổ giấy là 20 mm; cách cạnh phải của khổ giấy là 10 mm; cách cạnh trên và cạnh dưới của khổ giấy là 10 mm.

c) Khung tên được đặt ở góc dưới bên phải của bản vẽ và trình bày các thông tin cơ bản: – tên vật thể/đề bài tập;

– tên vật liệu;

– tỉ lệ của bản vẽ;

– kí hiệu số bài tập;

– họ, tên người vẽ;

– ngày lập bản vẽ;

– chữ kí của người kiểm tra;

– ngày kiểm tra;

– tên trường, lớp. 

Luyện tập 1 trang 70 Chuyên đề Toán 11: Hình 3.34b thể hiện một bản vẽ kĩ thuật có kích thước khung bản vẽ là 564 mm × 400 mm. Hỏi bản vẽ đó được vẽ trên khổ giấy nào?

Luyện tập 1 trang 70 Chuyên đề Toán 11

Lời giải:

Chiều dài của khổ giấy là 564 + 20 + 10 = 594 (mm)

Chiều rộng của khổ giấy là 400 + 10 + 10 = 420 (mm).

Do đó, bản vẽ được vẽ trên khổ giấy A2 (594 mm × 420 mm).

HĐ2 trang 70 Chuyên đề Toán 11: Quan sát bản vẽ kĩ thuật trong Hình 3.32 và cho biết trên bản vẽ đó có những loại nét vẽ nào? Chiều rộng (hay độ dày) của các nét vẽ đó có giống nhau không?

HĐ2 trang 70 Chuyên đề Toán 11

Lời giải:

Bản vẽ có các nét: nét liền đậm, nét liền mảnh, nét đứt mảnh. Chiều rộng (hay độ dày) của các nét không giống nhau. 

Luyện tập 2 trang 71 Chuyên đề Toán 11: Trên bản vẽ kĩ thuật ở Hình 3.32 có bao nhiêu nét liền mảnh?

Luyện tập 2 trang 71 Chuyên đề Toán 11

Lời giải:

Bản vẽ kĩ thuật ở Hình 3.32 có 21 nét liền mảnh.

HĐ3 trang 71 Chuyên đề Toán 11: Quan sát bản vẽ kĩ thuật trong Hình 3.32 và cho biết các kich thước được viết ở vị trí nào của đường kích thước.

HĐ3 trang 71 Chuyên đề Toán 11

Lời giải:

Nếu đường kích thước nằm dọc thì các chữ số kích thước nằm bên trái so với đường kích thước.

Nếu đường kích thước nằm ngang thì các chữ số kích thước nằm bên trên so với đường kích thước. 

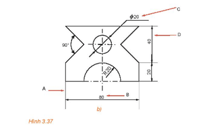
Luyện tập 3 trang 72 Chuyên đề Toán 11: Trong Hình 3.37b, kí hiệu nào trong hai kí hiệu C, D ứng với đường kích thước và kí hiệu nào ứng với chữ số kích thước?

Luyện tập 3 trang 72 Chuyên đề Toán 11

Lời giải:

Quan sát Hình 3.37b, ta thấy kí hiệu D ứng với đường kích thước, kí hiệu C ứng với chữ số kích thước.

2. Nguyên tắc cơ bản trong bản vẽ kĩ thuật

HĐ4 trang 72 Chuyên đề Toán 11: Quan sát bản vẽ kĩ thuật trong Hình 3.32 và trả lời các câu hỏi sau:

a) Các hình biểu diễn trong bản vẽ có giúp hình dung được hình dạng và cấu tạo của vật thể hay không?

b) Có kích thước nào của vật thể mà em không thể xác định được từ bản vẽ hay không?

HĐ4 trang 72 Chuyên đề Toán 11

Lời giải:

a) Các hình biểu diễn trong bản vẽ giúp hình dung được hình dạng và cấu tạo của vật thể.

b) Không có kích thước nào của vật thể mà em không thể xác định được từ bản vẽ.

Luyện tập 4 trang 72 Chuyên đề Toán 11: Hình 3.38b thể hiện một phần của bản vẽ. Bản vẽ đó có đáp ứng được các nguyên tắc cơ bản của vẽ kĩ thuật hay không? Giải thích vì sao.

Luyện tập 4 trang 72 Chuyên đề Toán 11

Lời giải:

Bản vẽ trong Hình 3.38b thể hiện duy nhất vật thể cần được biểu diễn, đồng thời các kích thước của vật thể có thể được xác định đầy đủ từ bản vẽ. Do đó bản vẽ trong Hình 3.38b đáp ứng được các nguyên tắc cơ bản của vẽ kĩ thuật.

Câu hỏi trang 73 Chuyên đề Toán 11: Để phân biệt hình hộp chữ nhật và hình trụ trong Hình 3.39a ta nên sử dụng thêm hình chiếu gì?

Câu hỏi trang 73 Chuyên đề Toán 11

Lời giải:

Để phân biệt hình hộp chữ nhật và hình trụ trong Hình 3.39a ta nên sử dụng thêm hình chiếu bằng do đáy của hình hộp chữ nhật là hình chữ nhật và đáy của hình trụ là hình tròn.

Luyện tập 5 trang 73 Chuyên đề Toán 11: Một phần của bản vẽ được thể hiện trong Hình 3.40. Bản vẽ đó có đáp ứng nguyên tắc đầy đủ trong bản vẽ kĩ thuật không?

Luyện tập 5 trang 73 Chuyên đề Toán 11

Lời giải:

Bản vẽ không đáp ứng nguyên tắc đầy đủ trong vẽ kĩ thuật vì thiếu đường kích thước của đáy trên ở hình chiếu đứng và kích thước hai hình nhỏ ở hình chiếu bằng.

3. Đọc và vẽ bản vẽ kĩ thuật đơn giản

HĐ5 trang 74 Chuyên đề Toán 11: Quan sát bản vẽ kĩ thuật trong Hình 3.32 và trả lời các câu hỏi sau:

a) Vật thể được biểu diễn trên bản vẽ có tên gọi là gì?

b) Bản vẽ thể hiện các hình chiếu nào của vật thể?

c) Em xác định chiều cao của vật thể từ bản vẽ bằng cách nào?

HĐ5 trang 74 Chuyên đề Toán 11

Lời giải:

a) Vật thể được biểu diễn trên bản vẽ có tên gọi là khối chữ T.

b) Bản vẽ thể hiện hình chiếu đứng, hình chiếu cạnh, hình chiếu bằng và hình chiếu trục đo của vật thể.

c) Chiều cao của vật thể từ bản vẽ xác định qua kích thước ở hình chiếu đứng và số liệu tỉ lệ trên bản vẽ.

Cụ thể, chiều cao vật thể trong bản vẽ là: 20 + 40 = 60 (mm).

Chiều cao thực của vật thể là: 60 : 5 = 12 (mm) (do tỉ lệ 5 : 1).

Luyện tập 6 trang 75 Chuyên đề Toán 11: Đọc bản vẽ kĩ thuật trong Hình 3.41b.

Luyện tập 6 trang 75 Chuyên đề Toán 11

Lời giải:

Bản vẽ kĩ thuật trong Hình 3.41b cho ta các nội dung sau:

– Khung tên: 

+ Tên gọi vật thể: lăng trụ lục giác đều;

+ Vật liệu: sắt;

+ Tỉ lệ: 1 : 5.

– Hình biểu diễn:

+ Tên gọi hình chiếu: hình chiếu đứng, hình chiếu bằng, hình chiếu cạnh và hình chiếu trục đo vuông góc đều.

– Kích thước:  

+ Vật thể có kích thước chung là: cao 40, ngang 40;

+ Vật thể có kích thước các thành phần: cạnh đáy 20.

– Yêu cầu kĩ thuật: 

+ Gia công: làm tủ cạnh;

+ Xử lí bề mặt: mạ kẽm. 

Vận dụng trang 75 Chuyên đề Toán 11: Một nhà máy dự định sử dụng 1 tấn hợp kim để sản xuất các chi tiết máy được mô tả như trong bản vẽ kĩ thuật ở Hình 3.32. Tính số lượng chi tiết máy sản xuất được, biết rằng khối lượng riêng của hợp kim là 7,85 tấn/m3 và giả sử rằng lượng hợp kim hao hụt trong sản xuất là không đáng kể.

Vận dụng trang 75 Chuyên đề Toán 11

Lời giải:

Đổi 1 mm = 0,001 m.

Với tỉ lệ 5 : 1, các kích thước thật của vật thể là:

20 : 5 = 4 mm = 0,004 m;

40 : 5 = 8 mm = 0,008 m;

30 : 5 = 6 mm = 0,006 m.

Công thức tính khối lượng riêng: D = mV  (D là khối lượng riêng (tấn/m3); m là khối lượng của vật (tấn); V là thể tích của vật (m3)).

Chia vật thể thành hai hình hộp chữ nhật A và B (như hình vẽ dưới).

Vận dụng trang 75 Chuyên đề Toán 11

+ Hình hộp chữ nhật A có:

Chiều dài đáy 0,006 + 0,004 + 0,004 = 0,014 (m)

Chiều rộng đáy 0,004 m, chiều cao 0,004 m.

Thể tích hình hộp chữ nhật A là: 0,014 . 0,004 . 0,004 = 2,24 . 10-7 (m3).

+ Hình hộp chữ nhật B có:

Chiều dài đáy 0,004 m, chiều rộng đáy 0,004 m, chiều cao 0,008 m.

Thể tích hình hộp chữ nhật B là: 0,004 . 0,004 . 0,008 = 1,28 . 10-7 (m3).

Do đó, thể tích của vật thể là: 2,24 .10-7 + 1,28 . 10-7 = 3,52 .10-7 (m3).

Theo công thức khối lượng riêng ta có:

7,85=m3,52.10−7⇔m=2,7632.10−6 (tấn).

Do đó, số lượng chi tiết máy sản xuất được là: 12,7632.10−6≈361  899  cái.

HĐ6 trang 75 Chuyên đề Toán 11: Để lập bản vẽ kĩ thuật gồm các hình chiếu vuông góc và hình chiếu trục đo vuông góc đều của một vật thể ta cần tuân theo thứ tự nào? Sắp xếp các bước sau để nhận được trình tự đúng.

a) Chọn hướng chiếu phù hợp.

b) Chỉnh sửa các nét vẽ và ghi kích thước.

c) Vẽ hình chiếu vuông góc của mỗi hình khối cấu tạo nên vật thể.

d) Phân tích vật thể thành các hình khối đơn giản.

e) Từ các hình chiếu vuông góc và hình biểu diễn của vật thể dựng hình chiếu trục đo.

f) Kẻ khung bản vẽ, khung tên để hoàn thành bản vẽ.

Lời giải:

Trình tự đúng là: d → a → c → b → e → f.

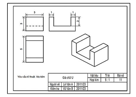
Luyện tập 7 trang 78 Chuyên đề Toán 11: Lập bản vẽ kĩ thuật của vật thể giá chữ U được biểu diễn trên giấy kẻ ô tam giác đều trong Hình 3.46. Quy ước mỗi cạnh của tam giác đều có chiều dài là 1 cm.

Luyện tập 7 trang 78 Chuyên đề Toán 11

Lời giải:

Bước 1: Nhận thấy rằng vật thể có dạng khối chữ U được bao bởi một hình hộp chữ nhật, phần rãnh cũng là hình hộp chữ nhật.

Luyện tập 7 trang 78 Chuyên đề Toán 11

Bước 2: Chọn các hướng chiếu lần lượt vuông góc với mặt trước, mặt trên và mặt bên trái của vật thể.

Luyện tập 7 trang 78 Chuyên đề Toán 11

Bước 3: Lần lượt vẽ hình chiếu vuông góc của hình hộp chữ nhật bao bên ngoài vật thể, của khối chữ U và của rãnh hộp chữ nhật.

Luyện tập 7 trang 78 Chuyên đề Toán 11

Bước 4: Xóa các nét thừa, chỉnh sửa các nét vẽ theo quy tắc: các đường thấy vẽ bằng nét liền; các đường khuất vẽ bằng nét đứt. Ghi các kích thước của vật thể trên các hình chiếu.

Luyện tập 7 trang 78 Chuyên đề Toán 11

Bước 5: Vẽ hình chiếu trục đo vuông góc đều của vật thể.

Luyện tập 7 trang 78 Chuyên đề Toán 11

Luyện tập 7 trang 78 Chuyên đề Toán 11

Bước 6: Hoàn thành khung tên, khung bản vẽ cuối cùng có dạng như sau:

Luyện tập 7 trang 78 Chuyên đề Toán 11

Giải bài tập trang 78, 79 Chuyên đề Toán 11 Bài 12

Bài 3.12 trang 78 Chuyên đề Toán 11: Quan sát một phần bản vẽ được thể hiện trong Hình 3.47 và giải thích vì sao bản vẽ đó không đáp ứng nguyên tắc đầy đủ trong vẽ kĩ thuật.

Bài 3.12 trang 78 Chuyên đề Toán 11

Lời giải:

Bản vẽ trong Hình 3.47 thể hiện duy nhất vật thể cần được biểu diễn, tuy nhiên các kích thước của vật thể không được xác định đầy đủ từ bản vẽ. Kích thước bị thiếu là:

Bài 3.12 trang 78 Chuyên đề Toán 11

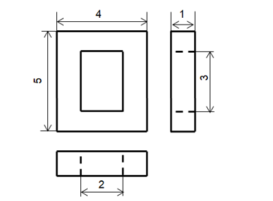
Bài 3.13 trang 79 Chuyên đề Toán 11: Đọc bản vẽ kĩ thuật trong Hình 3.48.

Bài 3.13 trang 79 Chuyên đề Toán 11

Lời giải:

Bản vẽ kĩ thuật trong Hình 3.48 cho ta các nội dung sau:

– Khung tên: 

+ Tên gọi vật thể: Hộp chữ nhật;

+ Vật liệu: Thép;

+ Tỉ lệ: 1 : 10.

– Hình biểu diễn:

+ Tên gọi hình chiếu: hình chiếu đứng, hình chiếu bằng, và hình chiếu trục đo vuông góc đều.

– Kích thước:  

+ Vật thể có kích thước chung là: cao 20, ngang 40, dài 40.

– Yêu cầu kĩ thuật: 

+ Xử lí bề mặt: Mạ kẽm. 

Bài 3.14 trang 79 Chuyên đề Toán 11: Lập bản vẽ kĩ thuật của vật thể giá chữ U được biểu diễn trên giấy kẻ ô tam giác đều trong Hình 3.49. Quy ước mỗi cạnh của tam giác đều có chiều dài là 1 cm.

Bài 3.14 trang 79 Chuyên đề Toán 11

Lời giải:

Bước 1: Nhận thấy rằng vật thể có dạng khối chữ U được bao bởi một hình hộp chữ nhật, phần rãnh cũng là hình hộp chữ nhật.

Bài 3.14 trang 79 Chuyên đề Toán 11

Bước 2: Chọn các hướng chiếu lần lượt vuông góc với mặt trước, mặt trên và mặt bên trái của vật thể.

Bài 3.14 trang 79 Chuyên đề Toán 11

Bước 3: Lần lượt vẽ hình chiếu vuông góc của hình hộp chữ nhật bao bên ngoài vật thể, của khối chữ U và của rãnh hộp chữ nhật.

Bài 3.14 trang 79 Chuyên đề Toán 11

Bài 3.14 trang 79 Chuyên đề Toán 11

c)

Bước 4: Xóa các nét thừa, chỉnh sửa các nét vẽ theo quy tắc: các đường thấy vẽ bằng nét liền; các đường khuất vẽ bằng nét đứt. Ghi các kích thước của vật thể trên các hình chiếu.

Bài 3.14 trang 79 Chuyên đề Toán 11

Bước 5: Vẽ hình chiếu trục đo vuông góc đều của vật thể.

Bài 3.14 trang 79 Chuyên đề Toán 11

Bài 3.14 trang 79 Chuyên đề Toán 11

Bước 6: Hoàn thành khung tên, khung bản vẽ để được bản vẽ cuối cùng có dạng như sau:

Bài 3.14 trang 79 Chuyên đề Toán 11

Bài 3.15 trang 79 Chuyên đề Toán 11: Tính thể tích của vật thể được biểu diễn trên giấy kẻ ô tam giác đều trong Hình 3.46. Quy ước mỗi cạnh của tam giác đều có chiều dài là 1 cm.

Bài 3.15 trang 79 Chuyên đề Toán 11

Lời giải:

Ta có: Thể tích vật thể giá chữ U này bằng hiệu thể tích của hình hộp chữ nhật bao ngoài vật thể và thể tích rãnh hộp chữ nhật.

Hình hộp chữ nhật bao ngoài có chiều dài 5 cm, chiều rộng 3 cm, chiều cao 4 cm. 

Suy ra, thể tích hình hộp chữ nhật bao ngoài là: 5 . 3 . 4 = 60 (cm3).

Rãnh hộp chữ nhật có chiều dài 3 cm, chiều rộng 3 cm, chiều cao 2 cm.

Suy ra, thể tích rãnh hộp chữ nhật là: 3 . 3 . 2 = 18 (cm3).

Vậy thể tích vật thể giá chữ U là: 60 – 18 = 42 (cm3).

Bài 3.16 trang 79 Chuyên đề Toán 11: Hãy chọn một vật thể đơn giản theo ý thích của mình và lập bản vẽ kĩ thuật cho vật thể đó.

Lời giải:

Chọn vật thể hộp chữ nhật rỗng giữa. Quy ước mỗi cạnh của tam giác đều có chiều dài 1 cm. 

Bài 3.16 trang 79 Chuyên đề Toán 11

Lập bản vẽ kĩ thuật:

Bước 1: Nhận thấy rằng vật thể có dạng khối hộp chữ nhật rỗng được bao bởi một hình hộp chữ nhật, phần rãnh cũng là hình hộp chữ nhật.

Bài 3.16 trang 79 Chuyên đề Toán 11

Bước 2: Chọn các hướng chiếu lần lượt vuông góc với mặt trước, mặt trên và mặt bên trái của vật thể.

Bài 3.16 trang 79 Chuyên đề Toán 11

Bước 3: Lần lượt vẽ hình chiếu vuông góc của hình hộp chữ nhật bao bên ngoài vật thể, của khối hộp chữ nhật rỗng và của rãnh hộp chữ nhật.

Bài 3.16 trang 79 Chuyên đề Toán 11

Bước 4: Xóa các nét thừa, chỉnh sửa các nét vẽ theo quy tắc: các đường thấy vẽ bằng nét liền; các đường khuất vẽ bằng nét đứt. Ghi các kích thước của vật thể trên các hình chiếu.

Bài 3.16 trang 79 Chuyên đề Toán 11

Bước 5: Vẽ hình chiếu trục đo vuông góc đều của vật thể.

Bài 3.16 trang 79 Chuyên đề Toán 11

Bài 3.16 trang 79 Chuyên đề Toán 11

Bước 6: Hoàn thành khung tên, khung bản vẽ để được bản vẽ cuối cùng có dạng như sau:

Bài 3.16 trang 79 Chuyên đề Toán 11

Xem thêm các bài giải chuyên đề học tập Toán lớp 11 Kết nối tri thức hay, chi tiết khác:

Bài 10: Bài toán tìm đường tối ưu trong một vài trường hợp đơn giản

Bài tập cuối chuyên đề 2

Bài 11: Hình chiếu vuông góc và hình chiếu trục đo

Bài 12: Bản vẽ kĩ thuật

Bài tập cuối chuyên đề 3

Xem thêm các bài giải chuyên đề học tập Toán lớp 11 Kết nối tri thức hay, chi tiết khác:

Chuyên đề 1: Phép biến hình trong mặt phẳng

Chuyên đề 2: Làm quen với một vài khái niệm của lí thuyết đồ thị

Chuyên đề 3: Một số yếu tố vẽ kĩ thuật

Tags : Tags Giải Chuyên đề Toán 11
Share
facebookShare on Facebook

Bài liên quan

Giải SGK Toán 11 Bài 12 (Kết nối tri thức): Đường thẳng và mặt phẳng song song

Giải SGK Toán 11 Bài 23 (Kết nối tri thức): Đường thẳng vuông góc với mặt phẳng

Giải SGK Toán 11 (Kết nối tri thức): Bài tập ôn tập cuối năm

Sách bài tập Toán 11 Bài 13 (Kết nối tri thức): Hai mặt phẳng song song

Sách bài tập Toán 11 Bài 26 (Kết nối tri thức): Khoảng cách

Giải Chuyên đề Toán 11 Kết nối tri thức Bài 4: Phép quay và phép đối xứng tâm

20 câu Trắc nghiệm Hàm số lượng giác (Kết nối tri thức 2025) có đáp án – Toán lớp 11

20 Bài tập Giới hạn của hàm số (sách mới) có đáp án – Toán 11

0 Góp ý
Phản hồi nội tuyến
Xem tất cả bình luận

Mục lục

  1. Giải SGK Toán 11 Bài 1 (Kết nối tri thức): Giá trị lượng giác của góc lượng giác
  2. Giải SGK Toán 11 Bài 2 (Kết nối tri thức): Công thức lượng giác
  3. Giải SGK Toán 11 Bài 3 (Kết nối tri thức): Hàm số lượng giác
  4. Giải SGK Toán 11 Bài 4 (Kết nối tri thức): Phương trình lượng giác cơ bản
  5. Giải SGK Toán 11 (Kết nối tri thức) Bài tập cuối chương 1 trang 40
  6. Giải SGK Toán 11 Bài 5 (Kết nối tri thức): Dãy số
  7. Giải SGK Toán 11 Bài 6 (Kết nối tri thức): Cấp số cộng
  8. Giải SGK Toán 11 Bài 7 (Kết nối tri thức): Cấp số nhân
  9. Giải SGK Toán 11 (Kết nối tri thức) Bài tập cuối chương 2 trang 56
  10. Giải SGK Toán 11 Bài 8 (Kết nối tri thức): Mẫu số liệu ghép nhóm
  11. Giải SGK Toán 11 Bài 9 (Kết nối tri thức): Các số đặc trưng đo xu thế trung tâm
  12. Giải SGK Toán 11 (Kết nối tri thức) Bài tập cuối chương 3 trang 69
  13. Giải SGK Toán 11 Bài 10 (Kết nối tri thức): Đường thẳng và mặt phẳng trong không gian
  14. Giải SGK Toán 11 Bài 11 (Kết nối tri thức): Hai đường thẳng song song
  15. Giải SGK Toán 11 Bài 12 (Kết nối tri thức): Đường thẳng và mặt phẳng song song
  16. Giải SGK Toán 11 Bài 13 (Kết nối tri thức): Hai mặt phẳng song song
  17. Giải SGK Toán 11 Bài 14 (Kết nối tri thức): Phép chiếu song song
  18. Giải SGK Toán 11 (Kết nối tri thức): Bài tập cuối chương 4
  19. Giải SGK Toán 11 Bài 15 (Kết nối tri thức): Giới hạn của dãy số
  20. Giải SGK Toán 11 Bài 16 (Kết nối tri thức): Giới hạn của hàm số

Copyright © 2026 Học tập lớp 12 - Sách Toán - Học Tập AI
  • Sitemap
  • Chính sách
  • Giới thiệu
  • Hướng dẫn
  • Kết quả
  • Liên hệ
Back to Top
Menu
  • Sitemap
  • Chính sách
  • Giới thiệu
  • Hướng dẫn
  • Kết quả
  • Liên hệ
wpDiscuz